行业动态
建筑技术 | 基于BIM的既有建筑标准加固构件库研究与应用
来源:admin 浏览量: 发布时间:2025-07-31 20:33:30
1 既有RC结构标准加固构件库创建
对既有建筑结构加固体系来说,由于加固形式的差异性、多样性及复杂性,将BIM技术引入建筑结构加固模块中极为困难,因此,为了提升BIM结构加固模型搭建的效率,本研究提出搭建针对传统结构加固技术的标准参数化可载入族库。
1.1 既有RC结构加固的传统技术
钢筋混凝土结构(以下简称“RC结构”)是目前国内使用较广泛的结构形式之一,尤其是在工业建筑中占比较大。在使用过程中会由于某些原因使结构出现不同程度的损伤,或为满足新的使用要求需要改变功能用途,结构均需进行加固改造。传统既有RC结构加固技术有粘贴纤维复合材加固技术、粘钢加固技术、外粘型钢加固技术、增大截面加固技术等。
粘贴纤维复合材加固技术,即通过配套粘结材料将纤维复合材粘贴于原结构表面,使纤维复合材与原构件变形协调、共同受力,以提高其承载力和延性的一种加固方法。
粘钢加固技术,即采用特制的建筑结构胶将处理好的钢板粘贴于原构件的混凝土表面,使钢板与混凝土形成统一的整体,以提高其承载能力的一种加固方法。
外粘型钢加固技术,即对钢筋混凝土梁、柱外包钢,与型钢、扁钢焊成构架并灌注结构胶粘剂,以达到整体受力、共同工作的一种加固方法;增大截面加固技术,即通过采用与原构件同种材料(钢筋混凝土)以增大构件的截面及配筋,进而提高原构件的承载力、刚度、稳定性和抗裂性。
上述4种传统结构加固技术是钢筋混凝土结构加固改造中最常规的加固技术,主要针对这4种结构加固技术进行标准加固构件库的开发。
1.2 标准加固构件库创建方法
作为结构加固信息模型的基础图元,对加固构件的属性信息、参数化设计进行标准化设定,并实现加固构件的完整功能。
1.2.1 加固构件属性信息
加固构件族命名是属性信息中一个重要环节,族命名规则的确定不仅方便族信息的修正,方便了后续对族库的系统性管理。加固构件分为加固零件、加固组件2个结构层次。
加固零件是加固组件最基本单元,层次代码为JGLJ(加固零件),其命名规则按照传统设计习惯命名并冠以相关编码,其命名规则为:“层次代码–编号及构件名称”,例如JGLJ–01钢板、JGLJ–02U箍等。
加固组件是一种加固零件或多种加固零件的集合体,层次代码为JGZJ(加固组件),是由加固零件进行有规则地嵌套组合而形成具有完整加固功能的嵌套族,其命名规则以“层次代码–编号–XX加固组件”的格式命名,例如:“JGZJ–01–梁粘钢加固组件”。
尺寸信息是属性信息中与构件族参数化关联最紧密的一项,其包含构件的几何信息和几何尺寸。加固构件几何参数化的关键在于“类型参数”和“实例参数”,其控制加固构件族的外观属性和行为属性。
类型参数是同一类型的族所共有的参数,类型参数值的改变,会使所有该类型的族个体做出相应的改变。实例参数是仅影响个体不影响同类型其他实例的参数。
本研究对于加固钢板厚度等通用尺寸采用“类型参数”实现,提升相同族类型批量调整参数的效率;对于加固钢板长度、宽度等非通用尺寸则采用“实例参数”实现,以适应单个构件族对某一具体参数的修改要求。
其他相关属性信息则根据使用方需求进行设定,例如材质参数是表达各构件的材质信息,可直接由原Revit软件数据库获取,并以“加固构件名称_材料”的格式命名。
1.2.2 加固构件标准参数化设计
所谓参数化设计,即是在加固构件确定的尺寸约束条件以及几何约束的条件下,按设计者给定的参数值生成新的仿真模型。其具体原理是利用几何约束以及数学表达式对不同尺寸之间依存关系进行描述,从而通过修改参数,使得整个参数化模型对应有唯一确定解。因此,本研究中加固构件参数化的前提是创建完备的尺寸约束以及几何约束,使尺寸标注实际起到几何约束的作用,类型参数属性则起到尺寸约束的作用,尺寸约束与几何约束共同作用,实现整个加固构件参数化模型的确定性。
基于传统既有RC结构加固技术所涉及的加固构件及市场现有材料,加固构件参数化建模基本步骤如下:根据加固构件特点,选择“公制常规模型”样板作为基础模板;根据加固构件结构形态,在族编辑器中布置参照平面并添加具体注释;利用拉伸、放样等形状功能实现加固构件实体创建,并选定族类别,在族中创建各种族类型指定特定的参数,将各参数用数学公式联系起来,实现“一变多变”的联动效果。
本研究所搭建的标准加固构件库主要包括钢板、U形箍、角钢、缀板、弧形箍、单面增大截面–混凝土等,示例如下。
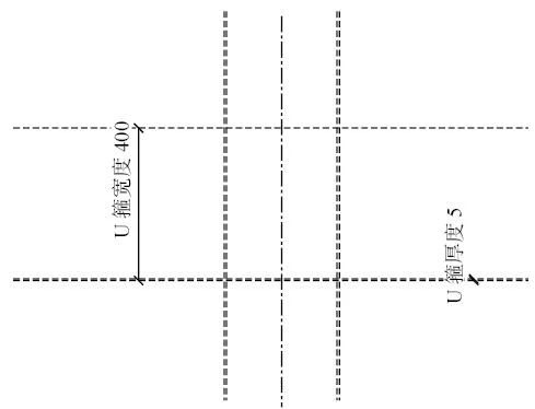
(1)U形箍。U形箍为混凝土梁粘钢加固技术或粘贴纤维复合材加固技术中所需的加固零件,为常规型构件,其名称命名为“JGLJ–02U箍”,选用“公制常规模型”样板为基础模板进行制作。由于U形箍截面及轴线较为规则,因此,选用拉伸及空心拉伸的方法来实现U形箍的标准化几何表达。在U形箍尺寸参数化过程中,其族类型名称定为“材质–U形箍厚度”,设定U形箍厚度为类型参数,U形箍宽度等其余参数为实例参数,以此进行U形箍参数设置。5mm厚的材质为Q355B的U形箍参数化设置如图1所示。

(a)

(b)
图1 U形箍参数化设置示意
(a)U形箍结构平面尺寸;(b)U形箍结构立面尺寸
(2)角钢为混凝土梁、柱外粘型钢加固技术中所需的加固零件,为常规型构件,其名称命名为“JGLJ–04角钢”,选用“公制常规模型”样板为基础模板进行制作。
由于角钢轮廓角部和两肢端部形状多为弧形,直接绘制轮廓较为困难,因此,采用CAD绘制轮廓后导入Revit中采用实体拉伸方法进行参数化建模,并设定族类型名称为“材质_角钢规格尺寸”,角钢厚度、两肢长度设定为类型参数,角钢长度设定为实例参数。以下是截面尺寸50 mm×50 mm×5 mm材质Q355B的等边角钢参数化建模,界面设置如图2所示。

(a) (b)
图2 角钢参数化设置
(a)角钢结构平面尺寸;(b)角钢结构立面尺寸
(3)弧形箍为剪力墙粘钢加固技术中所需的加固零件,为异形构件,其名称命名为“JGLJ–06弧形箍”,选用“公制常规模型”样板为基础模板进行制作。
由于弧形箍整体形状为弧形,拉伸、融合、旋转均无法实现此模型参数化,而放样、放样融合则适合异形构件的参数化。
放样的特点是可利用路径、轮廓表征构件形状,但其界面却不能随路径发生改变;放样融合的特点是既可以实现界面变化,又可以利用轮廓表征所需形状并进行参数化。
由于弧形箍轮廓界面无变化,故利用放样方法进行导线方式下的参数化建模。设定该加固零件族类型名称为“材质–弧形箍厚度–圆心角度数”,弧形箍厚度为类型参数,圆心角度数、弧形箍半径为实例参数,弧形钢板长度则由弧形箍半径和圆心角度数相关公式计算得出。以下是5 mm厚的材质为Q355B的弧形箍参数化设置,如图3所示。

(a)

(b)
图3 弧形箍参数化设置
(a)弧形箍结构立面尺寸;(b)弧形箍结构平面尺寸
(4)单面增大截面–钢筋框架。单面增大截面–钢筋框架为混凝土梁、柱增大截面加固技术中所需加固零件,为常规构件,其名称命名为“JGLJ–07单面增大截面–钢筋框架”,其选用的基础模板同上。
该模型中,纵筋采用拉伸方法进行参数化,箍筋则采用放样方法进行参数化,两者最终利用嵌套的方式进行组合形成钢筋框架。
设定该加固零件族类型名称为“材质–钢筋规格尺寸”,纵筋直径、箍筋直径等为类型参数,纵筋数量、箍筋垂直向长度等为实例参数。
以下是钢筋材质HRB400的纵筋6 18箍筋 10@100/200 mm的单面增大截面–钢筋框架参数化设置,如图4所示。

(a) (b)
图4钢筋框架参数化设置示意
(a)单面增大截面–钢筋框架结构平面尺寸;(b)单面增大截面–钢筋框架结构立面尺寸
1.2.3 加固构件完整功能的实现
既有RC结构所需的加固零件均可通过运用以上几种方法或其他方式进行创建。根据本研究对标准加固构件族库的需求,创建所有的加固零件并通过嵌套族的方式组装加固零件,形成特定加固技术的加固组件,并且需将子族参数与嵌套族参数进行关联绑定,最终实现具有完整功能的标准加固构件。标准加固组件体系主要包括板加固组件框架、梁粘钢加固组件框架、梁增大截面加固组件框架、柱包钢加固组件框架、柱增大截面加固组件框架等。
2 标准加固构件库的案例应用
2.1 工程概况
怀柔金隅兴发地块科研楼及附属设施加固改造项目,位于北京市怀柔区怀北镇北部,原项目名称为怀北水泥厂、怀北石灰石矿工程,建于20世纪90年代初。
该工程项目中涉及砌体结构、混凝土排架结构、混凝土框架结构、混凝土剪力墙结构、混凝土筒体结构等多种结构体系进行加固改造。
建筑抗震设防烈度8度,设计基本地震加速度值为0.2 g,建筑抗震设防类别为标准设防类(丙类),结构安全等级二级,设计地震分组为第二组,建筑场地类别Ⅱ类。
选取工程项目中某一加固单体进行标准加固构件库的建模应用。
A6单体由原建材石堆场改建而成,为混凝土框架结构,改造后结构形式不变,主要功能为科研、办公,总高为13.80 m,共4层,在该加固单体中对框架柱采用增大截面加固技术,对框架梁采用增大截面加固技术和粘钢加固技术。原结构三维构件布置如图5所示。

图5 加固前模型结构效果示意
2.2 结构整体BIM快速建模
依据加固设计图纸,运用创建的标准加固构件族库实现A6单体加固结构的快速建模,其中,A6单体加固后的三维效果如图6所示。

图6 加固后模型结构效果示意
经Revit软件结构碰撞检查发现,原结构与增大截面加固部分存在较多冲突点,多数为节点区原结构钢筋与新增截面钢筋的碰撞,加固后模型交叉碰撞如图7所示。造成该问题的原因一方面是原结构节点区域钢筋过于密集,而新增截面钢筋较多且直径较大;另一方面是原结构钢筋布置未知以至于无法主观避开。

图7 加固后模型交叉碰撞示意
针对这一问题,提出了一种既有建筑增大截面加固法钢筋密集区低损伤节点优化技术方法,即一种用于钢筋混凝土框架梁–中柱节点增大截面加固的筒形传力钢支架,代替原有节点作法,提前避免因原结构钢筋密集等问题而造成梁柱节点损伤严重。
3 结束语
本研究基于传统既有RC结构加固技术,形成了一套标准加固构件族参数化创建方法,并通过Revit族开发平台,创建了既有RC结构标准加固构件库。
该族库中涉及粘贴纤维复合材加固技术、粘钢加固技术、外粘型钢加固技术、增大截面加固技术这4种加固技术所需的加固零件及加固组件,并形成了快速建模功能。
在怀柔金隅兴发地块科研楼及附属设施项目中,结构单体加固模型的成功应用表明,本研究所搭建的标准加固构件库能够迅速地开展既有RC结构加固的模型搭建,并利用碰撞检查功能快速找到结构交叉矛盾点,提前预测施工过程中所遇到的技术难点并相对应地制订技术方案,显著提升了施工效率,节省成本,也为BIM技术在建筑加固领域的发展提供了参考。
摘自《建筑技术》2024年7月,刘越,刘航,张莉莉,赵来柱,张奕慧,张兴