5 某大雄宝殿BIM自动建模技术
该建筑是广东省全国重点文物保护单位,始建于北宋至道两年(公元996年),距今已有1000多年,占地面积约为1400 m²。
建筑的主体由山门、大雄宝殿、六祖殿、前后天花板、前后两廊组成。有庵前平台、六祖井、两侧众缘堂、荃香室、常光亭、六云亭、碑廊和梅园等附属建筑。其中大雄宝殿是广东省最古老的木结构建筑之一,其梁、斗拱等建筑构件保留了宋代建筑的结构风格,堪称岭南南宋建筑遗珍如图3、图4所示。

图3 大雄宝殿斗拱(摄影:莫新峰)

图4 某大雄宝殿补间铺作(图片来源:吴庆洲. 肇庆梅庵)
大雄宝殿面宽五间、纵深三间,坚硬山顶,面积169 m²。殿内斗材设计独特,其建筑形态和结构在我国较为罕见。因此,对某大雄宝殿进行数字化建档,对研究和解释这种珍贵历史文物的建筑结构和历史内涵具有重要意义。该人工智能算法是基于建筑语法,对点云的自动语义分割。目前已经跑通小样测试,在进一步优化中,如图5所示。

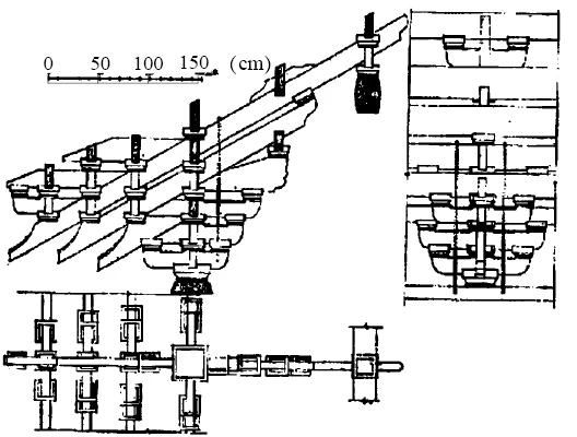
图5 BIM自动建模流程
以大雄宝殿的厅堂局部点云数据为例。在收集完成大雄宝殿的点云数据后,进行降噪精简拼合。对点云数据进行解析并进行语义分割,并用建筑语法进行校正。在对话框中选择BIM组件,算法开始运行。
对于每一处可匹配的构件,算法都会标黄并记录基本的几何属性和空间位置。同理在选择其他构件时,算法也会将门扇构件从一个点云整体中抽离出来并记录相应信息。
最终用识别构件导出完整的三维模型,并自动生成每个构件的空间位置、构件几何属性、材料属性等,从而完成从点云到建筑构件信息的自动映射。按点云数据容量,识别柱子与门扇的过程不超过1min,导出并添加构件的保护信息,即为HBIM模型,大幅提高了HBIM建模效率,如图6所示。

图6 大雄宝殿BIM自动建模演示
(a)演示1;(b)演示2;
(c)演示3;(d)演示4
该算法对双轴对称大殿、宝塔等形状相对整齐的历史建筑效果较好——建筑语法中的“对称”算法能方便快速地对自动语义分割结果进行校准。并且每一次算法进行识别点云数据,得到的如门、窗、斗栱等组件会自动加入构件库——机器学习的过程,如图7所示,从而不断完善可识别类型及精度。在面对复杂结构的建筑时,算法出错的概率也会相应增加,这需要程序员进行不断优化、调试。

图7 HBIM自动建模渲染出的斗拱
如果能优化该算法并大量使用,对历史建筑信息化建档来说,则具有划时代的意义。同时HBIM技术能搭建一种多方参与和协同管理的数字化平台。
这一平台可将档案管理、保护单位、改造设计、施工维护和大众参观访问联系在一起,贯穿历史建筑全生命周期的信息管理和展示工具,有效解决当前我国历史建筑数字化建档问题,并有效助力我国数字记忆建构的宏大课题,从数据管理维度支撑数字人文的深度融合与发展。
6 结论
2003年《保存数字遗产宪章》发布,正式将数字遗产纳入保护范围,明确其构成范围,其中包括原生数字形态或数字化转换而成的两种遗产形态。此后,联合国教科文组织进一步加强了对数字时代文化遗产和世界记忆的保护。
在数字化时代,如何让实体文化遗产空间变为再生数字资源并重新被使用,是一个需要长久探讨的话题。某大雄宝殿案例提出的BIM自动建模构思是基于建筑语法到点云进行自动语义分割的算法,实现了从点云对三维构件映射的关键一跃,从而大幅缩短人工建模时间。
目前为止,BIM/HBIM自动建模仍然是一个具有挑战性的课题,亟需一种新的、不增加成本的模式改进这种自动化。建筑语法在HBIM自动建模方面具有较大潜力,而HBIM自动化路线图,为完成未来以建筑语法进行自动建模的项目提供了新的解决思路。
基于建筑语法的建模技术,将会不断更新BIM和HBIM中的几何图元、建筑语义和拓扑关系定义,不断完善自动建模技术,最终大幅缩减BIM建模中昂贵的人力成本,从而让BIM和HBIM模型得到更广泛的应用。
(本文已完结)